Een glazen doos op een betonnen tafel. In een notendop is dat het gebouw van ITC op de campus van de TU Twente. Het voormalige laboratoriumgebouw Langezijds is getransformeerd tot onderwijsgebouw. Grootste ingreep: uit de betonnen tafel zijn grote happen gezaagd voor licht, lucht en ruimte. En dat mag je zien ook.
De faculteit van geo-informatie en aardobservatie van de TU Twente, kortweg aangeduid als ITC, richt zich op het observeren en in kaart brengen van veranderingen op de aarde. Die informatie wordt breed ingezet voor onder andere de energietransitie en duurzame stedelijke ontwikkeling. Het onderzoeksinstituut is opgericht in 1950 in Delft en was sinds de jaren zeventig gevestigd in het centrum van Enschede. In 2023 is de faculteit verhuisd naar campus Drienerlo van de TU Twente. Daar is het voormalige scheikundige laboratoriumgebouw uit 1972 getransformeerd tot onderwijsgebouw voor ongeveer 700 studenten en medewerkers.
Oude opzet
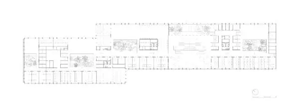
Het gebouw dankt de naam Langezijds aan zijn lengte van 220 meter. De begane grond heeft onder de constructieve balken een hoogte van 2,6 meter en diende voornamelijk als opslag en installatieruimte. Het functionele gebouw is opgezet op een grid van 1,55 meter en de kolommen staan op 6,2 meter van elkaar. Tot en met de verdiepingsvloer bestaat de constructie uit beton, daarboven staat een staalconstructie. De dakplaten zijn uitgevoerd in lichtgewicht Bims betonnen cassettes. Door de lage vensters en de grote diepte van het gebouw van ruim 38 meter, drong er weinig daglicht door op de begane grond. Op de veel hogere verdieping waren scheikundige laboratoria gesitueerd. Lichthappers op het dak en hogere glazen gevels zorgden hier voor meer daglicht.
Vijf enorme vides
De bestaande gebouwopzet was niet geschikt voor de nieuwe functie als onderwijsgebouw voor ITC. De transformatie van laboratorium naar onderwijsgebouw is een gezamenlijk ontwerp van Civic Architects, VDNDP, Studio Groen+Schild, Arup en Valstar Simonis. Een slimme ingreep zijn de enorme gaten die in de verdiepingsvloeren zijn gezaagd. Drie ervan meten circa 12,5 bij 25 meter en zijn ingericht als atria met tuinen onder nieuwe glazen daken. De vierde is zelfs 37 bij 25 meter. Hier is de grote entreehal gesitueerd. Er is nog een vijfde gat gezaagd van 12,5 bij 12,5 meter op de westkop van het gebouw. Deze zogenaamde ‘Kop van Langezijds’ is flexibel en kan door alle faculteiten op de campus worden gebruikt. In november 2023, tijdens het bezoek aan het gebouw met architect Rick ten Doeschate van Civic Architects, is het nog in verbouwing.
De vijf vides brengen veel daglicht in het gebouw. De ruimtes rond de vides zijn ingericht als open studielandschappen. Bij de entreehal loopt de open ruimte vanaf de noordgevel via een tribunetrap zelfs helemaal door tot aan het restaurant tegen de zuidgevel.
Het beton- en staalcasco is overal zichtbaar, inclusief de zaagsneden. “Ruwbouw is afbouw, dat was ons uitgangspunt”, legt Ten Doeschate uit. “We laten de materialen puur en waar mogelijk onbehandeld. Beschadigde onderdelen repareren we alleen indien dit echt vereist is.” Het resulteert in een stoer en robuust gebouw, inclusief imperfecties en gebruikssporen. De kleuren zijn materiaaleigen met zo min mogelijk coatings. Je ziet dus veel kaal beton en staal. Dankzij toepassing van houten wanden, bamboe vloeren en veel planten en bomen voelt het gebouw toch niet kil aan.
Akoestiek
De kantoren zijn op de koele begane grond geplaatst. De kleine ruimten zijn rustig en geschikt voor geconcentreerd werk. De ruimten met meer dynamiek, zoals de grotere onderwijsruimten, het restaurant en het studiecentrum, zijn op de verdieping gesitueerd.
Vooral rond de grootste vide bij de entree staan veel publieke ruimtes in open verbinding met elkaar: de hal met de tribune waar vaak presentaties worden gehouden, de bibliotheek, het studiecentrum en het restaurant. Zit dat elkaar niet in de weg qua geluid? “Arup heeft een akoestisch simulatiemodel gebouwd, aan de hand waarvan we de verwachte akoestiek hebben getest. Er zijn akoestische plafondpanelen aangebracht die het geluid absorberen en de concentratieruimtes zijn in geluidsluwe zones gesitueerd”, verzekert Ten Doeschate.
Glazen gevels
Bij de centrale hoofdentree op het noorden vouwt de gevel naar binnen. Hier is een ‘dakloze’ ruimte ontstaan, waar de betonnen kolommen en liggers niets dragen en verweesd lijken. Een aanvullende nieuwe stalen constructie stabiliseert de nieuwe glasgevel op de verdieping. Ten Doeschate: “We hebben de vliesgevel op de verdieping laten doorlopen om het beeld van die enorm lange gevel niet te onderbreken. De vliesgevel bestaat uit glaspanelen van circa 3 bij 5,4 meter, opgehangen aan staalprofielen met daartussen een aluminium koof met stalen vinnen en te openen luiken. Hierdoor kan er natuurlijk geventileerd worden zonder dat dit het beeld van de gevel verstoort. Een structurele kitnaad elke 12,4 meter zorgt voor een subtiele variatie in het ritme.” De nieuwe glazen gevels liggen een halve meter buiten de oude gevellijn. Die halve meter blijft goed zichtbaar doordat de tussenwanden ter plekke van glas zijn en er dus een doorlopend doorzicht is langs de gevels.
Aan de zuidzijde zijn de oude horizontale kunststof zonweringslamellen na een opknapbeurt herplaatst. Ten Doeschate: “In het kader van circulariteit zijn bestaande materialen en onderdelen zoveel mogelijk hergebruikt. Deze lamellen waren na een schoonmaakbeurt nog goed bruikbaar. Voor de Kop van Langezijds waren er niet genoeg panelen over, dus deze zijn vervangen door nieuwe. Die zijn nog met de originele mallen uit 1972 zijn gemaakt!” De zonwering voorkomt opwarming in de zomer.
Alle installaties in verdiepingsvloer
Het gebouw is goed geïsoleerd en heeft nu energielabel A+++, een GPR van 8+ met een 9,4 voor energie en een MPG van 0,63. Die scores zijn mede te danken aan een slim installatieconcept. De concentratie van de installaties voor de begane grond én de verdieping in de verhoogde verdiepingsvloer had veel voordelen. Hierdoor hoefde de begane grond niet in hoogte in te leveren. Vanuit dit plenum wordt verse lucht met lage snelheid de ruimtes ingeblazen. Door verdringing en natuurlijke trek verlaat de lucht via de daken van de atria het gebouw. Ook kunnen er in de gevels ramen en luikjes geopend worden. Dankzij dit ventilatiesysteem konden de originele Bims plafondcassettes in het zicht blijven en is de ruimte-indeling flexibel. Tegen het cassetteplafond zijn de sprinklerinstallatie en alle elektra in het zicht gehouden en bevestigd met zorgvuldig gedetailleerde klemmetjes, ontworpen door Studio Groen+Schild.
Overigens is achter de glazen gevels de grote hoogte van de verdiepingsvloeren goed zichtbaar, die trapt daar in twee treden af naar de gevel. “Je zou erop kunnen zitten. Maar dit is ook zo ontworpen, met het oog op de koude lucht die langs de glasgevel naar beneden kan vallen. Bij een normaal vloerdetail stroomt de koude lucht de ruimte in, maar omdat de vloer hier aftrapt, ontstaat er een sleuf waar de koude lucht in valt en niet de ruimte instroomt.”
Drie interne tuinen
Ook de tuinen dragen bij aan een aangenaam binnenklimaat. Ze hebben elk een eigen karakter: er is een hout-, een water- en een steentuin. De planten en bomen staan er in meer dan een meter grond. De V-vormige glazen daken verzamelen het regenwater dat via een stalen buis zichtbaar de tuinen inloopt. In de bodem wordt het water vastgehouden voor de planten.
Circulair visitekaartje
Het nieuwe onderkomen symboliseert de wereldwijde duurzame missie van de faculteit ITC. Het hergebruik van de bestaande constructie betekent een enorme besparing op materiaalgebruik. Voor de nieuwe onderdelen zijn producten en systemen gekozen met het oog op circulariteit. Zo zijn de binnenpuien en de plintgevel van eikenhout en de vloeren van bamboe. De nieuwe stalen constructiedelen zijn thermisch verzinkt en demontabel. Als tussenwanden zijn demontabele, stalen systeemwanden gekozen, toegepast in een materiaaleigen bronzen kleur, zonder afwerking en dus niet egaal. Ten Doeschate: “Het procedé maakte dat elk paneel net anders is, maar in imperfectie schuilt de schoonheid van dit gebouw.”
Projectgegevens
Opdrachtgever: Universiteit Twente
Gebruiker: ITC faculteit van geo-informatie en aardobservatie
Architecten: Civic Architects en VDNDP
Interieurarchitect: Studio Groen+Schild
Tuinontwerp: DS landschapsarchitecten
Adviseur bouwfysica: Arup
Adviseur installaties: Valstar Simonis
Adviseur constructie: Schreuders bouwtechniek
Adviseur duurzaamheid: Buro Loo
Hoofdaannemer: Bouwcombinatie Dura Vermeer Bouw Hengelo/Trebbe (bouwkundig) en Croonwolter&dros (installaties)
Interieurbouw: Harryvan
Bamboe vloeren: Moso
Stalen systeemwanden: QbiQ
Bruto vloeroppervlakte: 13.600 m2
Oplevering: 2023













